So I thought I’d write up a bit more on it. It’s a bit longer and heavier than usual. But bear with me. I believe it’ll be useful for the next person planning an IKEA kitchen purchase.
While I used the IKEA METOD kitchen, which is in metric – the IKEA Kitchen Planner tips can be applied to the IKEA SEKTION kitchen range.

I’m old school so I used pen and paper to plan before I laid my plans down on the software. IKEA even provided grid paper here.
My Ikea Kitchen Makeover
Then starting from one corner of the wall, I added the right combination of base cabinets according to the length of the wall and how I would use the cabinets. (Eg. a pull out cabinet for sauces and condiments to the left of my stove, drawers for cutlery in the kitchen island) Did the same for the wall cabinets. When I had a rough idea of how it should go I was ready to plan online.
At the same time, is responsible for my greatly reduced hair count. The learning curve was a little steep for me actually.
It was laggy, it didn’t carry the full range and didn’t always do what I wanted it to. I would click to rotate a cabinet, cook dinner and come back to it and it’s still turning.
Things To Know When Planning Your Ikea Kitchen
Then, I went to IKEA and watched the pros — the IKEA Kitchen Specialists — use it and picked up a few tricks. After that, the IKEA Kitchen Planner played nice with me and it quickly became my favourite night time activity. Because what’s better than watching kitchen doors transform from BROKHULT to RINGHULT? Sigh … I have no life.
(Just a side note to avoid confusion – the IKEA Kitchen Planner is officially called the IKEA Home Planner because you can also use it to plan your office and other spaces. But most people call it the planner and I’ve decided to use that name here for easy reference.)
If you’re using the IKEA Home Planner for the first time, you’ll need to create a profile so you can save your work. You’ll be asked to install a browser plug-in too. Once you’ve done that, the fun (and hair pulling) begins.
Transform Ikea Cabinets Into A Custom High End Look
1. When creating your layout, use “3D Line View” (which is the ugly line drawing version) instead of “Front 3D View”. In this view, the IKEA Kitchen Planner loads much faster. Switch to “Front 3D View” only when you want to see how it looks in 3D.
2. When you click on an item, wait for the “Options” menu to load on the right sidebar before you attempt to make any other move. My previous mistake was clicking one thing after another without letting them fully load.
You need to think of it like an old school computer – it can only do one thing at the time and only after the first thing is done. Otherwise, it just sulks and hangs. And you would have to log out and in again.
Ikea Kitchen Organization Ideas And Hacks
3. Save after every change. So if (and when) it hangs, you can quit the IKEA Kitchen Planner and load it up again without losing too much in the process.
4. Use Room Layout > Obstacles > Ceiling Box to create horizontal items you cannot find in the planner such as shelves.
5. Use Room Layout > Obstacles > Floor Obstacle to create vertical items you cannot find in the planner such as the “waterfall legs” of a countertop.
Ikea Is Totally Changing Their Kitchen Cabinet System. Here's What We Know About Sektion.
6. Use Worktops > Extra Worktop Solutions > Worktop Resizable to create countertop surfaces in areas without cabinets, such as on top of your dishwasher.

7. The right “Options” sidebar are the main customisation tool. Click the down arrows to open up even more features. Have fun trying all the doors, knobs and legs, etc.
8. You can’t move a cabinet if another is blocking its way. You must first move the block. Just like in real life.
Semi Custom Cabinets Don't Stop At The Fronts (and Ikea Isn't Your Only Budget Friendly Option Anymore)
9. When moving an item and it won’t go where you want it to, then you need to hold the item — click on the item, move it to the right position and do not ‘un-click’ — until the “yellow” outline turns “green” to fix it in the position. Unless there isn’t enough space for the cabinet, then it’ll never fit in. Just like in real life too.
10. For wall cabinets, click the “arrow” that appears on the side of the cabinet to move them up or down. The “hand grab” cursor only moves them horizontally.
It took some time but it was definitely worth learning to use the IKEA Kitchen Planner and I managed to create 2 possible kitchen plans. Well, the gavel’s down and Design #2 it is. (Thank you everyone for your comments and feedback. It has certainly made this whole process a lot more fun!)
Vihals Cabinet With Sliding Doors, Dark Grey, 95x47x90 Cm
This is the easy part. All I needed to do was head down to the IKEA Kitchen Department. I logged into the Home Planner and showed Khairul the Kitchen Specialist
My design and site measurements. He made a few tweaks and made sure everything fit in well. He gave ideas on troublesome areas. Using the final plan, he transferred every item onto the POS system.

Adding up this three lists, I had my final price. I took the lists and paid at check out. The POS Order is only valid for one day. If you don’t check out within 24 hours, the Kitchen Specialist would need to key in your order all over again. At this stage, I also booked the earliest possible installation date, which was in 2 weeks. Can’t wait for Step 4!
Are All Drawers The New Doors In Ikea Kitchens?
My items arrived 2 days before installation. I wanted to cross check them against my Order List to make sure they sent everything, but the little hill of 158 boxes was beyond me. It would be awesome if you do.
The installers came bright and early. First, they went through the plan with me. Then they assembled what felt like a thousands cabinets. After the “L” portion along the short and long walls, the kitchen island and with the worktops were installed.
Lastly, the finishing touches – they sealed the joints and gaps, added legs and plinths, made sure the doors were aligned, opened and closed properly, etc. Even, packed up all the carton boxes and hauled them away.
Get A Custom Ikea Kitchen With A Built In Hutch
I know I made it sound so easy and quick. But it actually took 3 days! And my new glossy IKEA Kitchen finally stood before me. When the installers left, I did my happy dance.
This is how it looks now — but it isn’t 100% done yet. There is still a missing pull out cabinet, which wasn’t delivered with my order (hence, the thing about cross-checking the delivered items against your order).
The horizontal glass doors are not the right one either. (The one I wanted, JUTIS, was out of stock. IKEA was kind enough to install these LAXARBY doors for temporary use, while I wait for the stock to come in.)

Ivar Cabinet, Pine, 32x12x33
There’s still lots of cleaning and some touching up to do. Some exposed areas need re-tiling. And of course, the massive job of deciding what goes where and restocking the cabinets. I’ll post more photos after the final installation and I’ve had the chance to fill those babies up.
Next post I’ll show you what I plan to do on two of my METOD kitchen cabinet doors. I’ll be adding a command centre to them to organise my weekly plan meals, groceries and bills all in one place. Stay tuned for the next My METOD Makeover update.
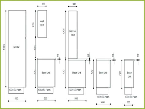
Disclosure: IKEA Malaysia is the sponsor of my new METOD kitchen. However, my experience and views on the IKEA METOD range are entirely my own. The most common questions I answer about this Ikea Cabinets with Semihandmade fronts kitchen are: “What are the sizes of your kitchen cabinets?” “How do you organize them?” I get it! When I was designing this kitchen the most important things I balanced were how it will look and how it will function. I talk about this so much! How it looks is always the easy part because we live in a world where inspiration is not sparse. It’s easy to search #ikeakitchen or #semispaces and have hundreds of examples instantly. But the hard part is determining the scale and size of these kitchens you are using as your inspiration.
Metod White, Corner Base Cabinet Frame, 88x88x80 Cm
There are definitely a lot of really helpful resources who have designed Ikea and Semihandmade kitchens. It’s actually a bit of a club. The Ikea and Semihandmade kitchen owners and those planning to join. I am always happy to share and answer questions about cabinet sizes and arrangements to achieve a certain look. Being a resource, both through this blog and my Instagram, is one of my favorite ways to help. That is why I thought I would break down my kitchen and how I organize it.
This post is intended to be detailed look at the sizes of our Ikea cabinet frames and Semihandmade drawer and doors. A template for what these sizes mean in real life. This is by no
0 Comments
Posting Komentar